Ulubione projekty
Twoja lista jest pusta
Dodano projekt
Usunięto projekt
- Powierzchnia użytkowa 83.12 m²
- Dodatkowo:
- kotłownia 6.67 m²
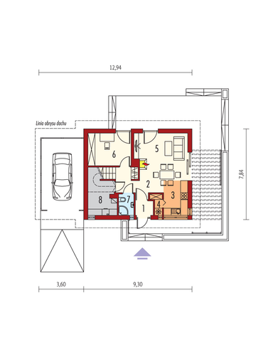
- Powierzchnia zabudowy 97.55 m²
- Pow. netto 111.05 m²
- Kubatura 293.36 m³
- Wymiary budynku 12.94 × 7.84 m
- Wysokość budynku 8.16 m
- Kąt nachylenia dachu 42o
- Powierzchnia dachu 165 m²
- Minimalne wymiary działki 18.94 x 15.84 m
Cena projektu
3 760 pln
4 700 pln
- Katalogowa karta projektu (724 KB)
- Lea II (z wiatą) - charakterystyka energetyczna (wersja domu z wentylacją grawitacyjną)Budynek spełnia wymagania WT2021 (513 KB)
- Lea II (z wiatą) - charakterystyka energetyczna (wersja domu z wentylacją mechaniczną)Budynek spełnia wymagania WT2021 (512 KB)
- Lea II (z wiatą) - materiały z projektu technicznegoBudynek spełnia wymagania WT2021 (656 KB)
- LEA II (z wiatą) - materiały z projektu technicznego (odbicie lustrzane)Budynek spełnia wymagania WT2021 (648 KB)
- Projekt domu Lea II (z wiatą) - zestawienie materiałów H+H do budowy domu (178 KB)
- Projekt domu Lea II - zestawienie materiałów do ocieplenia w kompletnym systemie TERMO ORGANIKA (214 KB)
- ProDeck - system tarasowy TERRA (2189 KB)
Zadaj pytanie do projektu Lea II (z wiatą)
Jesteś zainteresowany/a tym projektem? Architekt dyżurny przygotuje dla Ciebie materiały z projektu technicznego. Zostaw nam swoje dane, powiadomimy Cię, gdy pliki będą dostępne.
Zamawiając usługi forum i dzienników budowy, przyjmujesz do wiadomości i wyrażasz zgodę na świadczenie tych usług i przetwarzanie przez Usługodawcę, którym jest Pracownia Projektowa ARCHIPELAG A. Wójciak, R. Wójciak Sp. J., jako Administratora danych, podanych w formularzu danych osobowych, na zasadach wskazanych w Regulaminie i Polityce Prywatności serwisu ARCHIPELAG.pl.
Jeśli chcesz także otrzymywać bonusy i informacje dotyczące akcji promocyjnych naszych i naszych Partnerów, wyraź zgodę dodatkową i zaznacz odpowiednie pole. Wyrażam zgodę na przetwarzanie moich danych osobowych przez administratora, którym jest Pracownia Projektowa ARCHIPELAG A. Wójciak, R. Wójciak Sp. J. z siedzibą: ul. M. Smoluchowskiego 56/3, 50-372 Wrocław, nr KRS 0000123673, NIP: 897-16-05-744, REGON: 931987209:
Na podstawie art. 13 Rozporządzenia Parlamentu Europejskiego i Rady (UE) 2016/679 z dnia 27 kwietnia 2016 r. w sprawie ochrony osób fizycznych w związku z przetwarzaniem danych osobowych i w sprawie swobodnego przepływu takich danych oraz uchylenia dyrektywy 95/46/WE (RODO) informujemy Cię, że (przeczytaj klauzulę informacyjną):
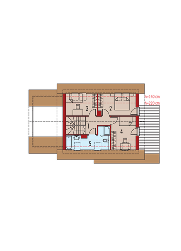
czytaj całość ›Parter
- 1. Wiatrołap 1.79 m²
- 2. Hol + schody 7.19 m²
- 3. Kuchnia 5.91 m²
- 4. Spiżarnia 1.30 m²
- 5. Pokój dzienny + jadalnia 19.32 m²
- 6. Gabinet 9.95 m²
- 7. Łazienka 2.27 m²
- 8. Kotłownia 6.67 m²
Zużycie energii
Wskaźnik EP dla domu z wentylacją grawitacyjną (szczegółowe dane w charakterystyce energetycznej)
Pobierz charakterystykę energetyczną:
Wskaźnik EP określa roczne zapotrzebowanie domu na nieodnawialną energię pierwotną do ogrzewania, wentylacji oraz przygotowania ciepłej wody użytkowej.
Szacunkowy koszt budowy
| STANDARDOWE (uśrednione) [zł] |
||
|---|---|---|
| Stan surowy otwarty: | 144 365 (1) | |
| Stan surowy zamknięty: | 177 680 (1) | |
| Stan deweloperski: | 294 282 (1) | |
| Instalacje wewnętrzne: | 29 428 (1) | |
|
(1) Wyliczone według współczynników (2) Wyliczone według kosztorysu |
||
Opinia eksperta
Forum (1)
Ostatnie tematy:
- Myślisz o... [0] gość, 2016-12-01 10:23
Dzienniki budowy
Archipelag dla Ciebie
Polecane technologie
Wypełnij formularz, skontaktujemy się z Tobą.
Zamawiając usługi forum i dzienników budowy, przyjmujesz do wiadomości i wyrażasz zgodę na świadczenie tych usług i przetwarzanie przez Usługodawcę, którym jest Pracownia Projektowa ARCHIPELAG A. Wójciak, R. Wójciak Sp. J., jako Administratora danych, podanych w formularzu danych osobowych, na zasadach wskazanych w Regulaminie i Polityce Prywatności serwisu ARCHIPELAG.pl.
Jeśli chcesz także otrzymywać bonusy i informacje dotyczące akcji promocyjnych naszych i naszych Partnerów, wyraź zgodę dodatkową i zaznacz odpowiednie pole. Wyrażam zgodę na przetwarzanie moich danych osobowych przez administratora, którym jest Pracownia Projektowa ARCHIPELAG A. Wójciak, R. Wójciak Sp. J. z siedzibą: ul. M. Smoluchowskiego 56/3, 50-372 Wrocław, nr KRS 0000123673, NIP: 897-16-05-744, REGON: 931987209:
Na podstawie art. 13 Rozporządzenia Parlamentu Europejskiego i Rady (UE) 2016/679 z dnia 27 kwietnia 2016 r. w sprawie ochrony osób fizycznych w związku z przetwarzaniem danych osobowych i w sprawie swobodnego przepływu takich danych oraz uchylenia dyrektywy 95/46/WE (RODO) informujemy Cię, że (przeczytaj klauzulę informacyjną):
czytaj całość ›




Lea II to wyjątkowy projekt – zarówno ze względu na wygląd, jak i funkcjonalność domu. System doświetlenia pozytywnie wpływa na samopoczucie domowników, a przestronny taras wykończony deskami kompozytowymi od ProDeck w kolorze platynowym, stanowi idealną strefę relaksu. Poddasze do zagospodarowania stwarza komfortowe warunki nawet dla dużej 5 osobowej rodziny.
czytaj więcej