Ulubione projekty
Twoja lista jest pusta
Dodano projekt
Usunięto projekt
- Powierzchnia użytkowa 135.06 m²
- Dodatkowo:
- kotłownia 7.68 m²
- garaż 32.24 m²
- Powierzchnia zabudowy 137.92 m²
- Pow. netto 204.23 m²
- Kubatura 517.68 m³
- Wymiary budynku 8.54 × 18.19 m
- Wysokość budynku 8.86 m
- Kąt nachylenia dachu 45o
- Powierzchnia dachu 191 m²
- Minimalne wymiary działki 16.54 x 25.54 m
Cena projektu
5 900 pln
- Kosma G2 - rysunki koncepcyjne (763 KB)
- Kosma G2 - charaktrystyka energetyczna (wersja domu z wentylacją grawitacyjną)Budynek spełnia wymagania WT2021 (541 KB)
- Kosma G2 - charaktrystyka energetyczna (wersja domu z wentylacją mechaniczną)Budynek spełnia wymagania WT2021 (540 KB)
Zadaj pytanie do projektu Kosma G2
Jesteś zainteresowany/a tym projektem? Architekt dyżurny przygotuje dla Ciebie materiały z projektu technicznego. Zostaw nam swoje dane, powiadomimy Cię, gdy pliki będą dostępne.
Zamawiając usługi forum i dzienników budowy, przyjmujesz do wiadomości i wyrażasz zgodę na świadczenie tych usług i przetwarzanie przez Usługodawcę, którym jest Pracownia Projektowa ARCHIPELAG A. Wójciak, R. Wójciak Sp. J., jako Administratora danych, podanych w formularzu danych osobowych, na zasadach wskazanych w Regulaminie i Polityce Prywatności serwisu ARCHIPELAG.pl.
Jeśli chcesz także otrzymywać bonusy i informacje dotyczące akcji promocyjnych naszych i naszych Partnerów, wyraź zgodę dodatkową i zaznacz odpowiednie pole. Wyrażam zgodę na przetwarzanie moich danych osobowych przez administratora, którym jest Pracownia Projektowa ARCHIPELAG A. Wójciak, R. Wójciak Sp. J. z siedzibą: ul. M. Smoluchowskiego 56/3, 50-372 Wrocław, nr KRS 0000123673, NIP: 897-16-05-744, REGON: 931987209:
Na podstawie art. 13 Rozporządzenia Parlamentu Europejskiego i Rady (UE) 2016/679 z dnia 27 kwietnia 2016 r. w sprawie ochrony osób fizycznych w związku z przetwarzaniem danych osobowych i w sprawie swobodnego przepływu takich danych oraz uchylenia dyrektywy 95/46/WE (RODO) informujemy Cię, że (przeczytaj klauzulę informacyjną):
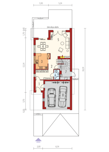
czytaj całość ›Parter
- 1. Wiatrołap 3.92 m²
- 2. Hol + schody 16.12 m²
- 3. Kuchnia 10.01 m²
- 4. Jadalnia 9.85 m²
- 5. Pokój dzienny 25.06 m²
- 6. Łazienka 2.61 m²
- 7. Kotłownia 7.68 m²
- 8. Garaż 32.24 m²
Zużycie energii
Wskaźnik EP dla domu z wentylacją grawitacyjną (szczegółowe dane w charakterystyce energetycznej)
Pobierz charakterystykę energetyczną:
Wskaźnik EP określa roczne zapotrzebowanie domu na nieodnawialną energię pierwotną do ogrzewania, wentylacji oraz przygotowania ciepłej wody użytkowej.
Szacunkowy koszt budowy
| STANDARDOWE (uśrednione) [zł] |
||
|---|---|---|
| Stan surowy otwarty: | 265 499 (1) | |
| Stan surowy zamknięty: | 326 768 (1) | |
| Stan deweloperski: | 541 209 (1) | |
| Instalacje wewnętrzne: | 54 120 (1) | |
|
(1) Wyliczone według współczynników (2) Wyliczone według kosztorysu |
||
Opinia eksperta
Forum
Dzienniki budowy
Archipelag dla Ciebie
Polecane technologie
Wypełnij formularz, skontaktujemy się z Tobą.
Zamawiając usługi forum i dzienników budowy, przyjmujesz do wiadomości i wyrażasz zgodę na świadczenie tych usług i przetwarzanie przez Usługodawcę, którym jest Pracownia Projektowa ARCHIPELAG A. Wójciak, R. Wójciak Sp. J., jako Administratora danych, podanych w formularzu danych osobowych, na zasadach wskazanych w Regulaminie i Polityce Prywatności serwisu ARCHIPELAG.pl.
Jeśli chcesz także otrzymywać bonusy i informacje dotyczące akcji promocyjnych naszych i naszych Partnerów, wyraź zgodę dodatkową i zaznacz odpowiednie pole. Wyrażam zgodę na przetwarzanie moich danych osobowych przez administratora, którym jest Pracownia Projektowa ARCHIPELAG A. Wójciak, R. Wójciak Sp. J. z siedzibą: ul. M. Smoluchowskiego 56/3, 50-372 Wrocław, nr KRS 0000123673, NIP: 897-16-05-744, REGON: 931987209:
Na podstawie art. 13 Rozporządzenia Parlamentu Europejskiego i Rady (UE) 2016/679 z dnia 27 kwietnia 2016 r. w sprawie ochrony osób fizycznych w związku z przetwarzaniem danych osobowych i w sprawie swobodnego przepływu takich danych oraz uchylenia dyrektywy 95/46/WE (RODO) informujemy Cię, że (przeczytaj klauzulę informacyjną):
czytaj całość ›





Kosma G2 to klasyczny budynek z poddaszem użytkowym. Jego wymiary stwarzają możliwości adaptacji tego projektu na wąską działkę. Forma budynku jest uatrakcyjniona podcieniami ulokowanymi na ścianach szczytowych z obu stron budynku. Funkcjonalnie budynek jest klarownie uporządkowany na strefę dzienną wraz z garażem na parterze oraz strefę nocną na poddaszu. Dosyć zwarta bryła budynku sprzyja jego energooszczędności, w której ściany zewnętrzne mają duży udział. Ściany zewnętrzne i wewnętrzną pomiędzy garażem, a częścią mieszkalną zaprojektowano z bloczków z betonu komórkowego o szerokości 24cm i klasie gęstości 500 lub 600. Ściany działowe zaprojektowano z bloczków z betonu komórkowego o szerokości 12cm. Otwory okienne i drzwiowe do szerokości 180 cm są przesklepione prefabrykowanymi nadprożami z betonu komórkowego. Wykonanie murów z betonu komórkowego to gwarancja energooszczędnego i trwałego domu, w którym będzie się bardzo dobrze mieszkać. Wiele elementów budynku można wykonać w systemie SOLBET stosując: bloczki, nadproża zbrojone z betonu komórkowego, zaprawę do cienkich spoin 0.1, system ocieplenia SOLBET Termo, tynki wewnętrzne i zewnętrzne oraz inne materiały.
czytaj więcej