Ulubione projekty
Twoja lista jest pusta
Dodano projekt
Usunięto projekt
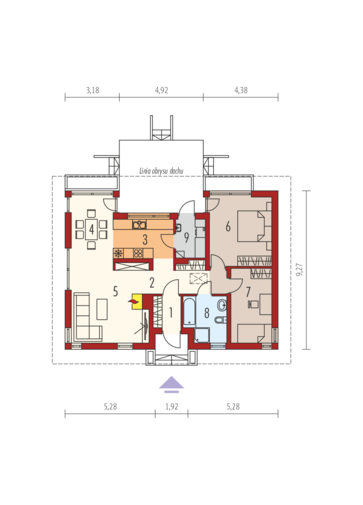
- Powierzchnia użytkowa 80.35 m²
- Dodatkowo:
- kotłownia 3.86 m²
- Powierzchnia zabudowy 116.35 m²
- Pow. netto 94.75 m²
- Kubatura 252.61 m³
- Wymiary budynku 12.48 × 9.27 m
- Wysokość budynku 6.72 m
- Kąt nachylenia dachu 30o
- Powierzchnia dachu 177 m²
- Minimalne wymiary działki 20.48 x 17.27 m
Cena projektu
3 440 pln
4 300 pln
- Katalogowa karta projektu (602 KB)
- Karmela III ECONOMIC - charakterystyka energetyczna (wersja domu z wentylacją grawitacyjną)Budynek spełnia wymagania WT2021 (488 KB)
- Karmela III ECONOMIC - charakterystyka energetyczna (wersja domu z wentylacją mechaniczną)Budynek spełnia wymagania WT2021 (489 KB)
- Karmela III ECONOMIC - materiały z projektu technicznego (753 KB)
- ProDeck - system tarasowy TERRA (2189 KB)
Zadaj pytanie do projektu Karmela III ECONOMIC
Jesteś zainteresowany/a tym projektem? Architekt dyżurny przygotuje dla Ciebie materiały z projektu technicznego. Zostaw nam swoje dane, powiadomimy Cię, gdy pliki będą dostępne.
Zamawiając usługi forum i dzienników budowy, przyjmujesz do wiadomości i wyrażasz zgodę na świadczenie tych usług i przetwarzanie przez Usługodawcę, którym jest Pracownia Projektowa ARCHIPELAG A. Wójciak, R. Wójciak Sp. J., jako Administratora danych, podanych w formularzu danych osobowych, na zasadach wskazanych w Regulaminie i Polityce Prywatności serwisu ARCHIPELAG.pl.
Jeśli chcesz także otrzymywać bonusy i informacje dotyczące akcji promocyjnych naszych i naszych Partnerów, wyraź zgodę dodatkową i zaznacz odpowiednie pole. Wyrażam zgodę na przetwarzanie moich danych osobowych przez administratora, którym jest Pracownia Projektowa ARCHIPELAG A. Wójciak, R. Wójciak Sp. J. z siedzibą: ul. M. Smoluchowskiego 56/3, 50-372 Wrocław, nr KRS 0000123673, NIP: 897-16-05-744, REGON: 931987209:
Na podstawie art. 13 Rozporządzenia Parlamentu Europejskiego i Rady (UE) 2016/679 z dnia 27 kwietnia 2016 r. w sprawie ochrony osób fizycznych w związku z przetwarzaniem danych osobowych i w sprawie swobodnego przepływu takich danych oraz uchylenia dyrektywy 95/46/WE (RODO) informujemy Cię, że (przeczytaj klauzulę informacyjną):
czytaj całość ›Zużycie energii
Wskaźnik EP dla domu z wentylacją grawitacyjną (szczegółowe dane w charakterystyce energetycznej)
Pobierz charakterystykę energetyczną:
Wskaźnik EP określa roczne zapotrzebowanie domu na nieodnawialną energię pierwotną do ogrzewania, wentylacji oraz przygotowania ciepłej wody użytkowej.
Szacunkowy koszt budowy
| STANDARDOWE (uśrednione) [zł] |
||
|---|---|---|
| Stan surowy otwarty: | 123 175 (1) | |
| Stan surowy zamknięty: | 151 600 (1) | |
| Stan deweloperski: | 251 087 (1) | |
| Instalacje wewnętrzne: | 25 108 (1) | |
|
(1) Wyliczone według współczynników (2) Wyliczone według kosztorysu |
||
Opinia eksperta
Forum
Dzienniki budowy
Archipelag dla Ciebie
Polecane technologie
Wypełnij formularz, skontaktujemy się z Tobą.
Zamawiając usługi forum i dzienników budowy, przyjmujesz do wiadomości i wyrażasz zgodę na świadczenie tych usług i przetwarzanie przez Usługodawcę, którym jest Pracownia Projektowa ARCHIPELAG A. Wójciak, R. Wójciak Sp. J., jako Administratora danych, podanych w formularzu danych osobowych, na zasadach wskazanych w Regulaminie i Polityce Prywatności serwisu ARCHIPELAG.pl.
Jeśli chcesz także otrzymywać bonusy i informacje dotyczące akcji promocyjnych naszych i naszych Partnerów, wyraź zgodę dodatkową i zaznacz odpowiednie pole. Wyrażam zgodę na przetwarzanie moich danych osobowych przez administratora, którym jest Pracownia Projektowa ARCHIPELAG A. Wójciak, R. Wójciak Sp. J. z siedzibą: ul. M. Smoluchowskiego 56/3, 50-372 Wrocław, nr KRS 0000123673, NIP: 897-16-05-744, REGON: 931987209:
Na podstawie art. 13 Rozporządzenia Parlamentu Europejskiego i Rady (UE) 2016/679 z dnia 27 kwietnia 2016 r. w sprawie ochrony osób fizycznych w związku z przetwarzaniem danych osobowych i w sprawie swobodnego przepływu takich danych oraz uchylenia dyrektywy 95/46/WE (RODO) informujemy Cię, że (przeczytaj klauzulę informacyjną):
czytaj całość ›



Karmela III ECONOMIC to projekt prostego, ekonomicznego domu parterowego z dachem dwuspadowym. W przypadku konstrukcji dachowej można powiedzieć, że im mniej skomplikowany projekt, tym niższe będą koszty jego realizacji. Dlaczego? Ponieważ dach charakteryzujący się małą liczbą płaszczyzn, rzadszym występowaniem załamań połaci oraz ograniczeniem elementów ozdobnych, pozwoli na zmniejszenie nakładów finansowych. W projekcie Karmela III ECONOMIC zastosowano dachówkę BERGAMO naszej produkcji, czyli nowoczesną propozycję o płaskiej formie w modnym antracytowym kolorze, która doskonale wpisuje w trend prostego, nowoczesnego budownictwa. W razie jakichkolwiek wątpliwości, związanych z doborem odpowiedniego pokrycia dachowego, zachęcamy do kontaktu z naszymi reprezentantami handlowymi. Kontakty znajdą Państwo na naszej stronie: https://roben.pl/kontakt/reprezentanci-handlowi
czytaj więcej