Ulubione projekty
Twoja lista jest pusta
Dodano projekt
Usunięto projekt
- Powierzchnia użytkowa 122.74 m²
- Dodatkowo:
- garaż 20.56 m²
- Powierzchnia zabudowy 110.10 m²
- Pow. netto 188.34 m²
- Kubatura 449.97 m³
- Wymiary budynku 12.70 × 10.10 m
- Wysokość budynku 8.46 m
- Kąt nachylenia dachu 45o (35°)
- Powierzchnia dachu 204 m²
- Minimalne wymiary działki 20.70 x 19.70 m
Cena projektu
1 850 pln
3 700 pln
- Katalogowa karta projektu (595 KB)
- Hiacynt G1 - charakterystyka energetyczna (wersja domu z wentylacją grawitacyjną)Budynek spełnia wymagania WT21 (526 KB)
- Hiacynt G1 - charakterystyka energetyczna (wersja domu z wentylacją mechaniczną))Budynek spełnia wymagania WT21 (527 KB)
- Hiacynt G1 - materiały z projektu technicznego (1100 KB)
Zadaj pytanie do projektu Hiacynt G1
Jesteś zainteresowany/a tym projektem? Architekt dyżurny przygotuje dla Ciebie materiały z projektu technicznego. Zostaw nam swoje dane, powiadomimy Cię, gdy pliki będą dostępne.
Zamawiając usługi forum i dzienników budowy, przyjmujesz do wiadomości i wyrażasz zgodę na świadczenie tych usług i przetwarzanie przez Usługodawcę, którym jest Pracownia Projektowa ARCHIPELAG A. Wójciak, R. Wójciak Sp. J., jako Administratora danych, podanych w formularzu danych osobowych, na zasadach wskazanych w Regulaminie i Polityce Prywatności serwisu ARCHIPELAG.pl.
Jeśli chcesz także otrzymywać bonusy i informacje dotyczące akcji promocyjnych naszych i naszych Partnerów, wyraź zgodę dodatkową i zaznacz odpowiednie pole. Wyrażam zgodę na przetwarzanie moich danych osobowych przez administratora, którym jest Pracownia Projektowa ARCHIPELAG A. Wójciak, R. Wójciak Sp. J. z siedzibą: ul. M. Smoluchowskiego 56/3, 50-372 Wrocław, nr KRS 0000123673, NIP: 897-16-05-744, REGON: 931987209:
Na podstawie art. 13 Rozporządzenia Parlamentu Europejskiego i Rady (UE) 2016/679 z dnia 27 kwietnia 2016 r. w sprawie ochrony osób fizycznych w związku z przetwarzaniem danych osobowych i w sprawie swobodnego przepływu takich danych oraz uchylenia dyrektywy 95/46/WE (RODO) informujemy Cię, że (przeczytaj klauzulę informacyjną):
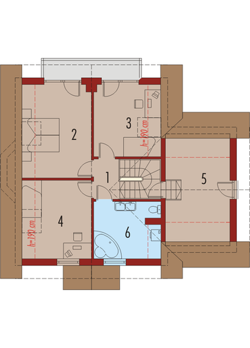
czytaj całość ›Parter
- 1. Wiatrołap 3.97 m²
- 2. Hol 9.41 m²
- 3. Kuchnia 8.82 m²
- 4. Pokój dzienny + jadalnia 34.70 m²
- 5. Toaleta 2.21 m²
- 6. Pom. gospodarcze 4.45 m²
- 7. Garaż 20.56 m²
Zużycie energii
Wskaźnik EP dla domu z wentylacją grawitacyjną (szczegółowe dane w charakterystyce energetycznej)
Pobierz charakterystykę energetyczną:
Wskaźnik EP określa roczne zapotrzebowanie domu na nieodnawialną energię pierwotną do ogrzewania, wentylacji oraz przygotowania ciepłej wody użytkowej.
Szacunkowy koszt budowy
| STANDARDOWE (uśrednione) [zł] |
||
|---|---|---|
| Stan surowy otwarty: | 244 842 (1) | |
| Stan surowy zamknięty: | 301 344 (1) | |
| Stan deweloperski: | 499 101 (1) | |
| Instalacje wewnętrzne: | 49 910 (1) | |
|
(1) Wyliczone według współczynników (2) Wyliczone według kosztorysu |
||
Forum
Dzienniki budowy
Archipelag dla Ciebie
Polecane technologie
Wypełnij formularz, skontaktujemy się z Tobą.
Zamawiając usługi forum i dzienników budowy, przyjmujesz do wiadomości i wyrażasz zgodę na świadczenie tych usług i przetwarzanie przez Usługodawcę, którym jest Pracownia Projektowa ARCHIPELAG A. Wójciak, R. Wójciak Sp. J., jako Administratora danych, podanych w formularzu danych osobowych, na zasadach wskazanych w Regulaminie i Polityce Prywatności serwisu ARCHIPELAG.pl.
Jeśli chcesz także otrzymywać bonusy i informacje dotyczące akcji promocyjnych naszych i naszych Partnerów, wyraź zgodę dodatkową i zaznacz odpowiednie pole. Wyrażam zgodę na przetwarzanie moich danych osobowych przez administratora, którym jest Pracownia Projektowa ARCHIPELAG A. Wójciak, R. Wójciak Sp. J. z siedzibą: ul. M. Smoluchowskiego 56/3, 50-372 Wrocław, nr KRS 0000123673, NIP: 897-16-05-744, REGON: 931987209:
Na podstawie art. 13 Rozporządzenia Parlamentu Europejskiego i Rady (UE) 2016/679 z dnia 27 kwietnia 2016 r. w sprawie ochrony osób fizycznych w związku z przetwarzaniem danych osobowych i w sprawie swobodnego przepływu takich danych oraz uchylenia dyrektywy 95/46/WE (RODO) informujemy Cię, że (przeczytaj klauzulę informacyjną):
czytaj całość ›

