Ulubione projekty
Twoja lista jest pusta
Dodano projekt
Usunięto projekt
- Powierzchnia użytkowa 212.41 m²
- Dodatkowo:
- kotłownia 18.75 m²
- garaż 29.82 m²
- Powierzchnia zabudowy 252.93 m²
- Pow. netto 350.95 m²
- Kubatura 887.07 m³
- Wymiary budynku 22.24 × 12.74 m
- Wysokość budynku 8.90 m
- Kąt nachylenia dachu 35o (2°)
- Powierzchnia dachu 167 m²
- Minimalne wymiary działki 29.24 x 19.74 m
Cena projektu
5 760 pln
7 200 pln
- Katalogowa karta projektu (638 KB)
- EX 18 G2 soft - charakterystyka energetyczna (wersja domu z wentylacja grawitacyjna)Budynek spełnia wymagania WT2021 (661 KB)
- EX 18 G2 soft - charakterystyka energetyczna (wersja domu z wentylacja mechaniczna)Budynek spełnia wymagania WT2021 (660 KB)
- EX 18 G2 soft - materiały z projektu technicznego (1235 KB)
- ISOVER - IZOLACJA poddasza użytkowego i stropu poddasza nieużytkowego (1181 KB)
- ProDeck - system tarasowy Terra (2189 KB)
- Deimic - system inteligentnego domu (564 KB)
- EX 18 G2 - zestawienie materiałów H+H do budowy domu (169 KB)
Zadaj pytanie do projektu EX 18 G2 soft
Jesteś zainteresowany/a tym projektem? Architekt dyżurny przygotuje dla Ciebie materiały z projektu technicznego. Zostaw nam swoje dane, powiadomimy Cię, gdy pliki będą dostępne.
Zamawiając usługi forum i dzienników budowy, przyjmujesz do wiadomości i wyrażasz zgodę na świadczenie tych usług i przetwarzanie przez Usługodawcę, którym jest Pracownia Projektowa ARCHIPELAG A. Wójciak, R. Wójciak Sp. J., jako Administratora danych, podanych w formularzu danych osobowych, na zasadach wskazanych w Regulaminie i Polityce Prywatności serwisu ARCHIPELAG.pl.
Jeśli chcesz także otrzymywać bonusy i informacje dotyczące akcji promocyjnych naszych i naszych Partnerów, wyraź zgodę dodatkową i zaznacz odpowiednie pole. Wyrażam zgodę na przetwarzanie moich danych osobowych przez administratora, którym jest Pracownia Projektowa ARCHIPELAG A. Wójciak, R. Wójciak Sp. J. z siedzibą: ul. M. Smoluchowskiego 56/3, 50-372 Wrocław, nr KRS 0000123673, NIP: 897-16-05-744, REGON: 931987209:
Na podstawie art. 13 Rozporządzenia Parlamentu Europejskiego i Rady (UE) 2016/679 z dnia 27 kwietnia 2016 r. w sprawie ochrony osób fizycznych w związku z przetwarzaniem danych osobowych i w sprawie swobodnego przepływu takich danych oraz uchylenia dyrektywy 95/46/WE (RODO) informujemy Cię, że (przeczytaj klauzulę informacyjną):
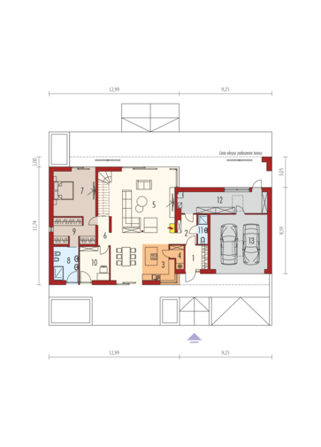
czytaj całość ›Parter
- 1. Wiatrołap 5.29 m²
- 2. Hol 5.68 m²
- 3. Kuchnia + jadalnia 21.40 m²
- 4. Spiżarnia 2.57 m²
- 5. Pokój dzienny 39.13 m²
- 6. Korytarz + schody 16.49 m²
- 7. Sypialnia 19.77 m²
- 8. Łazienka 8.29 m²
- 9. Garderoba 9.74 m²
- 10. Gabinet 9.75 m²
- 11. Łazienka 2.86 m²
- 12. Kotłownia 18.75 m²
- 13. Garaż 29.82 m²
Zużycie energii
Wskaźnik EP dla domu z wentylacją grawitacyjną (szczegółowe dane w charakterystyce energetycznej)
Pobierz charakterystykę energetyczną:
Wskaźnik EP określa roczne zapotrzebowanie domu na nieodnawialną energię pierwotną do ogrzewania, wentylacji oraz przygotowania ciepłej wody użytkowej.
Szacunkowy koszt budowy
| STANDARDOWE (uśrednione) [zł] |
||
|---|---|---|
| Stan surowy otwarty: | 456 235 (1) | |
| Stan surowy zamknięty: | 561 520 (1) | |
| Stan deweloperski: | 930 017 (1) | |
| Instalacje wewnętrzne: | 93 001 (1) | |
|
(1) Wyliczone według współczynników (2) Wyliczone według kosztorysu |
||
Opinia eksperta
Forum
Dzienniki budowy
Archipelag dla Ciebie
Polecane technologie
Wypełnij formularz, skontaktujemy się z Tobą.
Zamawiając usługi forum i dzienników budowy, przyjmujesz do wiadomości i wyrażasz zgodę na świadczenie tych usług i przetwarzanie przez Usługodawcę, którym jest Pracownia Projektowa ARCHIPELAG A. Wójciak, R. Wójciak Sp. J., jako Administratora danych, podanych w formularzu danych osobowych, na zasadach wskazanych w Regulaminie i Polityce Prywatności serwisu ARCHIPELAG.pl.
Jeśli chcesz także otrzymywać bonusy i informacje dotyczące akcji promocyjnych naszych i naszych Partnerów, wyraź zgodę dodatkową i zaznacz odpowiednie pole. Wyrażam zgodę na przetwarzanie moich danych osobowych przez administratora, którym jest Pracownia Projektowa ARCHIPELAG A. Wójciak, R. Wójciak Sp. J. z siedzibą: ul. M. Smoluchowskiego 56/3, 50-372 Wrocław, nr KRS 0000123673, NIP: 897-16-05-744, REGON: 931987209:
Na podstawie art. 13 Rozporządzenia Parlamentu Europejskiego i Rady (UE) 2016/679 z dnia 27 kwietnia 2016 r. w sprawie ochrony osób fizycznych w związku z przetwarzaniem danych osobowych i w sprawie swobodnego przepływu takich danych oraz uchylenia dyrektywy 95/46/WE (RODO) informujemy Cię, że (przeczytaj klauzulę informacyjną):
czytaj całość ›









Dom EX 18 G2 soft łączy nowoczesną estetykę z funkcjonalnością. Okna i drzwi MasterLine 8 od Reynaers Aluminium to rozwiązanie idealnie wpisujące się w założenia tego projektu. System ten oferuje doskonałą izolację termiczną i akustyczną, co przekłada się na oszczędność energii i komfort użytkowania. W kuchni zamontowano okno narożne, które gwarantuje domownikom nie tylko doskonałe doświetlenie kuchennej przestrzeni, ale także panoramiczny widok, co sprawia, że codzienne przygotowywanie posiłków staje się jeszcze przyjemniejsze. Drzwi podnoszono-przesuwne MasterPatio umożliwiają bezpośrednie przejście z salonu na taras, oferując nie tylko wygodę, ale i imponujące widoki na otaczający ogród. To idealne rozwiązanie dla osób ceniących otwarte, harmonijne przestrzenie.
czytaj więcej