Ulubione projekty
Twoja lista jest pusta
Dodano projekt
Usunięto projekt
- Powierzchnia użytkowa 123.61 m²
- Dodatkowo:
- kotłownia 6.70 m²
- Powierzchnia zabudowy 133.79 m²
- Pow. netto 166.38 m²
- Kubatura 541.66 m³
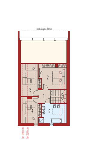
- Wymiary budynku 8.54 × 15.64 m
- Wysokość budynku 8.71 m
- Kąt nachylenia dachu 45o
- Powierzchnia dachu 157 m²
- Minimalne wymiary działki 16.54 x 22.48 m
Cena projektu
5 040 pln
6 300 pln
- Katalogowa karta projektu (676 KB)
- EX 13 soft - charakterystyka energetyczna (wersja domu z wentylacją grawitacyjną)Budynek spełnia wymagania WT2017 (519 KB)
- EX 13 soft - charakterystyka energetyczna (wersja domu z wentylacją mechaniczną)Budynek spełnia wymagania WT2021 (519 KB)
- EX 13 Soft - rysunki koncepcyjne (580 KB)
- EX 13 Soft - materiały z projektu technicznego (odbicie lustrzane) (1162 KB)
- ISOVER - IZOLACJA poddasza użytkowego i stropu poddasza nieużytkowego (1181 KB)
Zadaj pytanie do projektu EX 13 soft
Jesteś zainteresowany/a tym projektem? Architekt dyżurny przygotuje dla Ciebie materiały z projektu technicznego. Zostaw nam swoje dane, powiadomimy Cię, gdy pliki będą dostępne.
Zamawiając usługi forum i dzienników budowy, przyjmujesz do wiadomości i wyrażasz zgodę na świadczenie tych usług i przetwarzanie przez Usługodawcę, którym jest Pracownia Projektowa ARCHIPELAG A. Wójciak, R. Wójciak Sp. J., jako Administratora danych, podanych w formularzu danych osobowych, na zasadach wskazanych w Regulaminie i Polityce Prywatności serwisu ARCHIPELAG.pl.
Jeśli chcesz także otrzymywać bonusy i informacje dotyczące akcji promocyjnych naszych i naszych Partnerów, wyraź zgodę dodatkową i zaznacz odpowiednie pole. Wyrażam zgodę na przetwarzanie moich danych osobowych przez administratora, którym jest Pracownia Projektowa ARCHIPELAG A. Wójciak, R. Wójciak Sp. J. z siedzibą: ul. M. Smoluchowskiego 56/3, 50-372 Wrocław, nr KRS 0000123673, NIP: 897-16-05-744, REGON: 931987209:
Na podstawie art. 13 Rozporządzenia Parlamentu Europejskiego i Rady (UE) 2016/679 z dnia 27 kwietnia 2016 r. w sprawie ochrony osób fizycznych w związku z przetwarzaniem danych osobowych i w sprawie swobodnego przepływu takich danych oraz uchylenia dyrektywy 95/46/WE (RODO) informujemy Cię, że (przeczytaj klauzulę informacyjną):
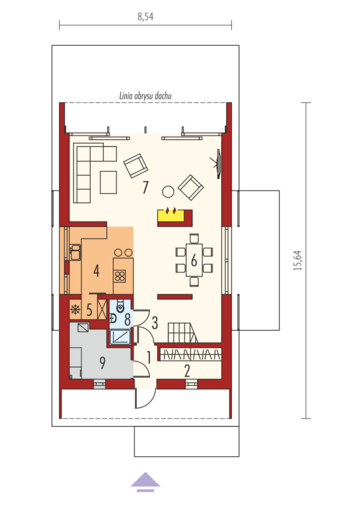
czytaj całość ›Parter
- 1. Wiatrołap 1.95 m²
- 2. Garderoba 4.79 m²
- 3. Hol + schody 9.99 m²
- 4. Kuchnia 10.57 m²
- 5. Spiżarnia 1.82 m²
- 6. Jadalnia 14.57 m²
- 7. Pokój dzienny 30.42 m²
- 8. Łazienka 2.38 m²
- 9. Kotłownia 6.70 m²
Zużycie energii
Wskaźnik EP dla domu z wentylacją grawitacyjną (szczegółowe dane w charakterystyce energetycznej)
Pobierz charakterystykę energetyczną:
Wskaźnik EP określa roczne zapotrzebowanie domu na nieodnawialną energię pierwotną do ogrzewania, wentylacji oraz przygotowania ciepłej wody użytkowej.
Szacunkowy koszt budowy
| STANDARDOWE (uśrednione) [zł] |
||
|---|---|---|
| Stan surowy otwarty: | 216 294 (1) | |
| Stan surowy zamknięty: | 266 208 (1) | |
| Stan deweloperski: | 440 907 (1) | |
| Instalacje wewnętrzne: | 44 090 (1) | |
|
(1) Wyliczone według współczynników (2) Wyliczone według kosztorysu |
||
Opinia eksperta
Forum
Dzienniki budowy
Archipelag dla Ciebie
Polecane technologie
Wypełnij formularz, skontaktujemy się z Tobą.
Zamawiając usługi forum i dzienników budowy, przyjmujesz do wiadomości i wyrażasz zgodę na świadczenie tych usług i przetwarzanie przez Usługodawcę, którym jest Pracownia Projektowa ARCHIPELAG A. Wójciak, R. Wójciak Sp. J., jako Administratora danych, podanych w formularzu danych osobowych, na zasadach wskazanych w Regulaminie i Polityce Prywatności serwisu ARCHIPELAG.pl.
Jeśli chcesz także otrzymywać bonusy i informacje dotyczące akcji promocyjnych naszych i naszych Partnerów, wyraź zgodę dodatkową i zaznacz odpowiednie pole. Wyrażam zgodę na przetwarzanie moich danych osobowych przez administratora, którym jest Pracownia Projektowa ARCHIPELAG A. Wójciak, R. Wójciak Sp. J. z siedzibą: ul. M. Smoluchowskiego 56/3, 50-372 Wrocław, nr KRS 0000123673, NIP: 897-16-05-744, REGON: 931987209:
Na podstawie art. 13 Rozporządzenia Parlamentu Europejskiego i Rady (UE) 2016/679 z dnia 27 kwietnia 2016 r. w sprawie ochrony osób fizycznych w związku z przetwarzaniem danych osobowych i w sprawie swobodnego przepływu takich danych oraz uchylenia dyrektywy 95/46/WE (RODO) informujemy Cię, że (przeczytaj klauzulę informacyjną):
czytaj całość ›




Projekt nowoczesnego budynku EX 13 soft nawiązujący do tradycji. Piękno i nowoczesność tego domu tkwi w prostocie bryły, bezokapowym dachu, elewacji dopasowanej do funkcji oraz w czytelnym programie funkcjonalnym. Interesującym rozwiązaniem są podcienie w ścianach szczytowych. Od strony frontowej podcień zaprasza do wejścia do domu, a z drugiej otwiera wnętrze domu na otoczenie. Niewątpliwą zaletą jest też energooszczędność takiej formy budynku. Ściany nośne zaprojektowano z betonu komórkowego SOLBET o szerokości 24cm. Mogą to być bloczki o klasie gęstości 500 lub 600 profilowane na pióra i wpusty lub bez profilowania. Ściany działowe zaprojektowano z bloczków SOLBET o szerokości 12cm. Tego typu rozwiązanie spełnia wymogi pod względem wymagań akustycznych pomiędzy pomieszczeniami w obrębie jednego mieszkania. Do wykończenia i ocieplenia można wykorzystać również inne wyroby chemii budowlanej SOLBET.
czytaj więcej