Ulubione projekty
Twoja lista jest pusta
Dodano projekt
Usunięto projekt
- Powierzchnia użytkowa 109.67 m²
- Dodatkowo:
- kotłownia 8.11 m²
- garaż 18.81 m²
- Powierzchnia zabudowy 124.52 m²
- Pow. netto 185.82 m²
- Kubatura 497.49 m³
- Wymiary budynku 8.50 × 14.50 m
- Wysokość budynku 8.78 m
- Kąt nachylenia dachu 45o
- Powierzchnia dachu 204 m²
- Minimalne wymiary działki 16.50 x 20.90 m
Cena projektu
3 680 pln
4 600 pln
- Katalogowa karta projektu (702 KB)
- Elias G1- charakterystyka energetyczna (wersja domu z wentylacją grawitacyjną)Budynek spełnia wymagania WT2021 (538 KB)
- Elias G1 - charakterystyka energetyczna (wersja domu z wentylacją mechaniczną, rekuperacja)Budynek spełnia wymagania WT2021 (537 KB)
- ProDeck - system tarasowy TERRA (2189 KB)
- Projekt domu Elias G1 - materiały z projektu technicznego (1511 KB)
- Projekt domu Elias G1 - materiały z projektu technicznego (odbicie lustrzane) (1493 KB)
- Elias G1 - zestawienie materiałów do ocieplenia w kompletnym systemie TERMO ORGANIKA (214 KB)
Zadaj pytanie do projektu Elias G1
Jesteś zainteresowany/a tym projektem? Architekt dyżurny przygotuje dla Ciebie materiały z projektu technicznego. Zostaw nam swoje dane, powiadomimy Cię, gdy pliki będą dostępne.
Zamawiając usługi forum i dzienników budowy, przyjmujesz do wiadomości i wyrażasz zgodę na świadczenie tych usług i przetwarzanie przez Usługodawcę, którym jest Pracownia Projektowa ARCHIPELAG A. Wójciak, R. Wójciak Sp. J., jako Administratora danych, podanych w formularzu danych osobowych, na zasadach wskazanych w Regulaminie i Polityce Prywatności serwisu ARCHIPELAG.pl.
Jeśli chcesz także otrzymywać bonusy i informacje dotyczące akcji promocyjnych naszych i naszych Partnerów, wyraź zgodę dodatkową i zaznacz odpowiednie pole. Wyrażam zgodę na przetwarzanie moich danych osobowych przez administratora, którym jest Pracownia Projektowa ARCHIPELAG A. Wójciak, R. Wójciak Sp. J. z siedzibą: ul. M. Smoluchowskiego 56/3, 50-372 Wrocław, nr KRS 0000123673, NIP: 897-16-05-744, REGON: 931987209:
Na podstawie art. 13 Rozporządzenia Parlamentu Europejskiego i Rady (UE) 2016/679 z dnia 27 kwietnia 2016 r. w sprawie ochrony osób fizycznych w związku z przetwarzaniem danych osobowych i w sprawie swobodnego przepływu takich danych oraz uchylenia dyrektywy 95/46/WE (RODO) informujemy Cię, że (przeczytaj klauzulę informacyjną):
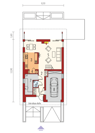
czytaj całość ›Parter
- 1. Wiatrołap 3.17 m²
- 2. Hol 5.17 m²
- 3. Kuchnia + jadalnia 15.54 m²
- 4. Spiżarnia 1.18 m²
- 5. Pokój dzienny + schody 27.27 m²
- 6. Toaleta 1.33 m²
- 7. Kotłownia 8.11 m²
- 8. Garaż 18.81 m²
Zużycie energii
Wskaźnik EP dla domu z wentylacją grawitacyjną (szczegółowe dane w charakterystyce energetycznej)
Pobierz charakterystykę energetyczną:
Wskaźnik EP określa roczne zapotrzebowanie domu na nieodnawialną energię pierwotną do ogrzewania, wentylacji oraz przygotowania ciepłej wody użytkowej.
Szacunkowy koszt budowy
| STANDARDOWE (uśrednione) [zł] |
||
|---|---|---|
| Stan surowy otwarty: | 241 566 (1) | |
| Stan surowy zamknięty: | 297 312 (1) | |
| Stan deweloperski: | 492 423 (1) | |
| Instalacje wewnętrzne: | 49 242 (1) | |
|
(1) Wyliczone według współczynników (2) Wyliczone według kosztorysu |
||
Opinia eksperta
Forum (1)
Ostatnie tematy:
- Myślisz o... [0] gość, 2016-12-01 10:04
Archipelag dla Ciebie
Polecane technologie
Wypełnij formularz, skontaktujemy się z Tobą.
Zamawiając usługi forum i dzienników budowy, przyjmujesz do wiadomości i wyrażasz zgodę na świadczenie tych usług i przetwarzanie przez Usługodawcę, którym jest Pracownia Projektowa ARCHIPELAG A. Wójciak, R. Wójciak Sp. J., jako Administratora danych, podanych w formularzu danych osobowych, na zasadach wskazanych w Regulaminie i Polityce Prywatności serwisu ARCHIPELAG.pl.
Jeśli chcesz także otrzymywać bonusy i informacje dotyczące akcji promocyjnych naszych i naszych Partnerów, wyraź zgodę dodatkową i zaznacz odpowiednie pole. Wyrażam zgodę na przetwarzanie moich danych osobowych przez administratora, którym jest Pracownia Projektowa ARCHIPELAG A. Wójciak, R. Wójciak Sp. J. z siedzibą: ul. M. Smoluchowskiego 56/3, 50-372 Wrocław, nr KRS 0000123673, NIP: 897-16-05-744, REGON: 931987209:
Na podstawie art. 13 Rozporządzenia Parlamentu Europejskiego i Rady (UE) 2016/679 z dnia 27 kwietnia 2016 r. w sprawie ochrony osób fizycznych w związku z przetwarzaniem danych osobowych i w sprawie swobodnego przepływu takich danych oraz uchylenia dyrektywy 95/46/WE (RODO) informujemy Cię, że (przeczytaj klauzulę informacyjną):
czytaj całość ›




Elias G1 to prosty i zarazem efektowny projekt domu parterowego z poddaszem użytkowym. Do dyspozycji przyszłych mieszkańców są garaż jednostanowiskowy i funkcjonalnie zaplanowane pomieszczenia. Jedną z największych zalet budynku jest jego wykończenie, w której dominują drewno, kamień i elewacja z tynku mineralnego w kolorze białym. Na uwagę zasługuje również taras z desek kompozytowych ProDeck w kolorze wiśnia/antracyt. Częściowo zadaszona przestrzeń sprawia, że w sezonie letnim miejsce to może pełnić funkcję salonu na świeżym powietrzu. Użyte w projekcie deski tarasowe, dzięki swoim właściwościom są odporne na działanie warunków atmosferycznych, pleśni i uszkodzeń mechanicznych, co powoduje, że są często polecane posiadaczom domów jednorodzinnych.
czytaj więcej