Ulubione projekty
Twoja lista jest pusta
Dodano projekt
Usunięto projekt
- Powierzchnia użytkowa 136.46 m²
- Dodatkowo:
- kotłownia 6.31 m²
- garaż 38.63 m²
- pom. dodatkowe (np. strych) 12.51 m²
- pom. dodatkowe (np. strych) 11.57 m²
- Powierzchnia zabudowy 211.29 m²
- Pow. netto 288.61 m²
- Kubatura 792.46 m³
- Wymiary budynku 16.84 × 18.44 m
- Wysokość budynku 7.83 m
- Kąt nachylenia dachu 35o (2°)
- Powierzchnia dachu 240 m²
- Minimalne wymiary działki 23.84 x 26.44 m
Cena projektu
4 560 pln
5 700 pln
- Katalogowa karta projektu (797 KB)
- Daniel IV G2 - charakterystyka energetyczna (wersja domu z wentylacją grawitacyjną)Budynek spełnia wymagania WT2021 (553 KB)
- Daniel IV G2 - charakterystyka energetyczna (wersja domu z wentylacją mechaniczną)Budynek spełnia wymagania WT2021 (552 KB)
- Daniel IV G2 - materiały z projektu technicznego (1013 KB)
- Daniel IV G2 - materiały z projektu technicznego (odbicie lustrzane) (956 KB)
- Daniel IV G2 - projekt prefabrykowanej więźby dachowej (1219 KB)
- ProDeck - system tarasowy TERRA (2189 KB)
- ISOVER - IZOLACJA poddasza użytkowego i stropu poddasza nieużytkowego (1181 KB)
- Deimic - system inteligentnego domu (564 KB)
Zadaj pytanie do projektu Daniel IV G2
Jesteś zainteresowany/a tym projektem? Architekt dyżurny przygotuje dla Ciebie materiały z projektu technicznego. Zostaw nam swoje dane, powiadomimy Cię, gdy pliki będą dostępne.
Zamawiając usługi forum i dzienników budowy, przyjmujesz do wiadomości i wyrażasz zgodę na świadczenie tych usług i przetwarzanie przez Usługodawcę, którym jest Pracownia Projektowa ARCHIPELAG A. Wójciak, R. Wójciak Sp. J., jako Administratora danych, podanych w formularzu danych osobowych, na zasadach wskazanych w Regulaminie i Polityce Prywatności serwisu ARCHIPELAG.pl.
Jeśli chcesz także otrzymywać bonusy i informacje dotyczące akcji promocyjnych naszych i naszych Partnerów, wyraź zgodę dodatkową i zaznacz odpowiednie pole. Wyrażam zgodę na przetwarzanie moich danych osobowych przez administratora, którym jest Pracownia Projektowa ARCHIPELAG A. Wójciak, R. Wójciak Sp. J. z siedzibą: ul. M. Smoluchowskiego 56/3, 50-372 Wrocław, nr KRS 0000123673, NIP: 897-16-05-744, REGON: 931987209:
Na podstawie art. 13 Rozporządzenia Parlamentu Europejskiego i Rady (UE) 2016/679 z dnia 27 kwietnia 2016 r. w sprawie ochrony osób fizycznych w związku z przetwarzaniem danych osobowych i w sprawie swobodnego przepływu takich danych oraz uchylenia dyrektywy 95/46/WE (RODO) informujemy Cię, że (przeczytaj klauzulę informacyjną):
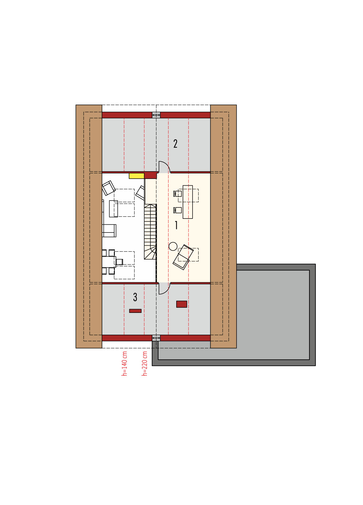
czytaj całość ›Parter
- 1. Wiatrołap 3.82 m²
- 2. Hol 5.68 m²
- 3. Kuchnia 10.42 m²
- 4. Spiżarnia 1.28 m²
- 5. Jadalnia + schody 11.62 m²
- 6. Pokój dzienny + schody 26.43 m²
- 7. Garderoba 1.67 m²
- 8. Łazienka 3.51 m²
- 9. Korytarz 8.71 m²
- 10. Sypialnia 14.18 m²
- 11. Garderoba 4.71 m²
- 12. Sypialnia 11.57 m²
- 13. Sypialnia 11.57 m²
- 14. Łazienka 7.21 m²
- 15. Kotłownia 6.31 m²
- 16. Garaż 38.63 m²
Zużycie energii
Wskaźnik EP dla domu z wentylacją grawitacyjną (szczegółowe dane w charakterystyce energetycznej)
Pobierz charakterystykę energetyczną:
Wskaźnik EP określa roczne zapotrzebowanie domu na nieodnawialną energię pierwotną do ogrzewania, wentylacji oraz przygotowania ciepłej wody użytkowej.
Szacunkowy koszt budowy
| STANDARDOWE (uśrednione) [zł] |
||
|---|---|---|
| Stan surowy otwarty: | 375 193 (1) | |
| Stan surowy zamknięty: | 461 776 (1) | |
| Stan deweloperski: | 764 816 (1) | |
| Instalacje wewnętrzne: | 76 481 (1) | |
|
(1) Wyliczone według współczynników (2) Wyliczone według kosztorysu |
||
Opinia eksperta
Forum
Dzienniki budowy
Archipelag dla Ciebie
Polecane technologie
Wypełnij formularz, skontaktujemy się z Tobą.
Zamawiając usługi forum i dzienników budowy, przyjmujesz do wiadomości i wyrażasz zgodę na świadczenie tych usług i przetwarzanie przez Usługodawcę, którym jest Pracownia Projektowa ARCHIPELAG A. Wójciak, R. Wójciak Sp. J., jako Administratora danych, podanych w formularzu danych osobowych, na zasadach wskazanych w Regulaminie i Polityce Prywatności serwisu ARCHIPELAG.pl.
Jeśli chcesz także otrzymywać bonusy i informacje dotyczące akcji promocyjnych naszych i naszych Partnerów, wyraź zgodę dodatkową i zaznacz odpowiednie pole. Wyrażam zgodę na przetwarzanie moich danych osobowych przez administratora, którym jest Pracownia Projektowa ARCHIPELAG A. Wójciak, R. Wójciak Sp. J. z siedzibą: ul. M. Smoluchowskiego 56/3, 50-372 Wrocław, nr KRS 0000123673, NIP: 897-16-05-744, REGON: 931987209:
Na podstawie art. 13 Rozporządzenia Parlamentu Europejskiego i Rady (UE) 2016/679 z dnia 27 kwietnia 2016 r. w sprawie ochrony osób fizycznych w związku z przetwarzaniem danych osobowych i w sprawie swobodnego przepływu takich danych oraz uchylenia dyrektywy 95/46/WE (RODO) informujemy Cię, że (przeczytaj klauzulę informacyjną):
czytaj całość ›







Dach skośny stanowi niezwykle istotny element budynku jeśli chodzi o jego zapotrzebowanie na energię do ogrzewania czy chłodzenia. Latem bardzo się nagrzewa, zaś zimą przez swoją sporą powierzchnię będzie tracił ciepło. Dlatego też trzeba zadbać, aby bez względu na porę roku zapewniał nam komfort cieplny. Najlepszym sposobem na to jest zastosowanie dwóch warstw (jedna pomiędzy krokwie, druga pod krokwiami) wełny szklanej ISOVER Super-Mata. Ma ona optymalny stosunek izolacyjności do ceny. Bardzo niski współczynnik przewodzenia ciepła (lambda) 0,033 W/mK powoduje, że stosując ją oszczędzamy na grubości w porównaniu z izolacjami o gorszych parametrach. W razie jakichkolwiek wątpliwości związanych z doborem rozwiązań z zakresu izolacji termicznej, polecam skorzystać z bezpłatnych konsultacji z inżynierami Biura Doradztwa Technicznego ISOVER. Bezpłatna infolinia o numerze 800 163 121 czynna jest od poniedziałku do piątku w godzinach 8.00-17.00, e-mail: konsultanci.isover@saint-gobain.com.
czytaj więcej