Ulubione projekty
Twoja lista jest pusta
Dodano projekt
Usunięto projekt
- Powierzchnia użytkowa 140.18 m²
- Dodatkowo:
- kotłownia 12.25 m²
- garaż 39.52 m²
- strych 20.06 m²
- Powierzchnia zabudowy 161.05 m²
- Pow. netto 266.42 m²
- Kubatura 634.77 m³
- Wymiary budynku 17.60 × 9.90 m
- Wysokość budynku 8.99 m
- Kąt nachylenia dachu 42o
- Powierzchnia dachu 282 m²
- Minimalne wymiary działki 25.60 x 17.90 m
Cena projektu
3 920 pln
4 900 pln
- Katalogowa karta projektu (767 KB)
- Amaranta G2 Leca® DOM - charakterystyka energetyczna (wersja domu z wentylacją grawitacyjną)Budynek spełnia wymagania WT2017 (457 KB)
- Amaranta Leca® DOM - materiały z projektu technicznego (901 KB)
- Amaranta G2 Leca® DOM - charakterystyka energetyczna (wersja domu z wentylacją mechaniczną)Budynek spełnia wymagania WT2021 (459 KB)
- Projekt domu Amaranta G2 Leca® DOM - proponowane zestawienie materiałów w kompletnym systemie - TERMO ORGANIKA (491 KB)
- ProDeck - system tarasowy TERRA (2189 KB)
Zadaj pytanie do projektu Amaranta G2 Leca® DOM
Jesteś zainteresowany/a tym projektem? Architekt dyżurny przygotuje dla Ciebie materiały z projektu technicznego. Zostaw nam swoje dane, powiadomimy Cię, gdy pliki będą dostępne.
Zamawiając usługi forum i dzienników budowy, przyjmujesz do wiadomości i wyrażasz zgodę na świadczenie tych usług i przetwarzanie przez Usługodawcę, którym jest Pracownia Projektowa ARCHIPELAG A. Wójciak, R. Wójciak Sp. J., jako Administratora danych, podanych w formularzu danych osobowych, na zasadach wskazanych w Regulaminie i Polityce Prywatności serwisu ARCHIPELAG.pl.
Jeśli chcesz także otrzymywać bonusy i informacje dotyczące akcji promocyjnych naszych i naszych Partnerów, wyraź zgodę dodatkową i zaznacz odpowiednie pole. Wyrażam zgodę na przetwarzanie moich danych osobowych przez administratora, którym jest Pracownia Projektowa ARCHIPELAG A. Wójciak, R. Wójciak Sp. J. z siedzibą: ul. M. Smoluchowskiego 56/3, 50-372 Wrocław, nr KRS 0000123673, NIP: 897-16-05-744, REGON: 931987209:
Na podstawie art. 13 Rozporządzenia Parlamentu Europejskiego i Rady (UE) 2016/679 z dnia 27 kwietnia 2016 r. w sprawie ochrony osób fizycznych w związku z przetwarzaniem danych osobowych i w sprawie swobodnego przepływu takich danych oraz uchylenia dyrektywy 95/46/WE (RODO) informujemy Cię, że (przeczytaj klauzulę informacyjną):
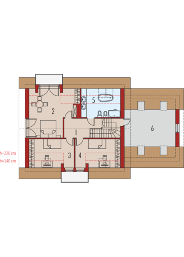
czytaj całość ›Parter
- 1. Wiatrołap 4.07 m²
- 2. Hol + schody 16.21 m²
- 3. Kuchnia 11.15 m²
- 4. Spiżarnia 1.79 m²
- 5. Pokój dzienny + jadalnia 29.52 m²
- 6. Gabinet 10.63 m²
- 7. Łazienka 2.66 m²
- 8. Kotłownia 12.25 m²
- 9. Garaż 39.52 m²
Zużycie energii
Wskaźnik EP dla domu z wentylacją grawitacyjną (szczegółowe dane w charakterystyce energetycznej)
Pobierz charakterystykę energetyczną:
Wskaźnik EP określa roczne zapotrzebowanie domu na nieodnawialną energię pierwotną do ogrzewania, wentylacji oraz przygotowania ciepłej wody użytkowej.
Szacunkowy koszt budowy
| STANDARDOWE (uśrednione) [zł] |
||
|---|---|---|
| Stan surowy otwarty: | 346 346 (1) | |
| Stan surowy zamknięty: | 426 272 (1) | |
| Stan deweloperski: | 706 013 (1) | |
| Instalacje wewnętrzne: | 70 601 (1) | |
|
(1) Wyliczone według współczynników (2) Wyliczone według kosztorysu |
||
Opinia eksperta
Forum (2)
Ostatnie tematy:
- Czy ktoś planuje... [19] gość, 2017-06-30 13:26
- Myślisz o... [0] gość, 2016-11-30 14:12
Dzienniki budowy
Archipelag dla Ciebie
Polecane technologie
Wypełnij formularz, skontaktujemy się z Tobą.
Zamawiając usługi forum i dzienników budowy, przyjmujesz do wiadomości i wyrażasz zgodę na świadczenie tych usług i przetwarzanie przez Usługodawcę, którym jest Pracownia Projektowa ARCHIPELAG A. Wójciak, R. Wójciak Sp. J., jako Administratora danych, podanych w formularzu danych osobowych, na zasadach wskazanych w Regulaminie i Polityce Prywatności serwisu ARCHIPELAG.pl.
Jeśli chcesz także otrzymywać bonusy i informacje dotyczące akcji promocyjnych naszych i naszych Partnerów, wyraź zgodę dodatkową i zaznacz odpowiednie pole. Wyrażam zgodę na przetwarzanie moich danych osobowych przez administratora, którym jest Pracownia Projektowa ARCHIPELAG A. Wójciak, R. Wójciak Sp. J. z siedzibą: ul. M. Smoluchowskiego 56/3, 50-372 Wrocław, nr KRS 0000123673, NIP: 897-16-05-744, REGON: 931987209:
Na podstawie art. 13 Rozporządzenia Parlamentu Europejskiego i Rady (UE) 2016/679 z dnia 27 kwietnia 2016 r. w sprawie ochrony osób fizycznych w związku z przetwarzaniem danych osobowych i w sprawie swobodnego przepływu takich danych oraz uchylenia dyrektywy 95/46/WE (RODO) informujemy Cię, że (przeczytaj klauzulę informacyjną):
czytaj całość ›





Amaranta G2 Leca® DOM to dom, który pozwala na elastyczną zmianę funkcji pomieszczeń. Przykładowo, pomieszczenie nad garażem może być przeznaczone na dodatkową sypialnię, siłownię, lub też na pracownię. Podwójny garaż połączony z dużym pomieszczeniem kotłowni pozwala na wykorzystanie tej przestrzeni przez majsterkowiczów.
czytaj więcej