Ulubione projekty
Twoja lista jest pusta
Dodano projekt
Usunięto projekt
- Powierzchnia użytkowa 136.97 m²
- Dodatkowo:
- kotłownia 5.98 m²
- garaż 39.18 m²
- poddasze do adaptacji 49.29 m²
- Powierzchnia zabudowy 265.36 m²
- Pow. netto 230.44 m²
- Kubatura 608.77 m³
- Wymiary budynku 17.30 × 18.80 m
- Wysokość budynku 6.87 m
- Kąt nachylenia dachu 28o
- Powierzchnia dachu 353 m²
- Minimalne wymiary działki 24.30 x 26.80 m
Cena projektu
4 160 pln
5 200 pln
- Katalogowa karta projektu (753 KB)
- Alan IV G2 - charakterystyka energetyczna (wersja domu z wentylacją grawitacyjną)Budynek spełnia wymagania WT2017 (456 KB)
- Alan IV G2 - charakterystyka energetyczna (wersja domu z wentylacją mechaniczną)Budynek spełnia wymagania WT2021 (458 KB)
- Alan IV G2 - materiały z projektu technicznego (1487 KB)
- Alan IV G2 - materiały z projektu technicznego (odbicie lustrzane) (1767 KB)
- ProDeck - system tarasowy TERRA (2189 KB)
Zadaj pytanie do projektu Alan IV G2
Jesteś zainteresowany/a tym projektem? Architekt dyżurny przygotuje dla Ciebie materiały z projektu technicznego. Zostaw nam swoje dane, powiadomimy Cię, gdy pliki będą dostępne.
Zamawiając usługi forum i dzienników budowy, przyjmujesz do wiadomości i wyrażasz zgodę na świadczenie tych usług i przetwarzanie przez Usługodawcę, którym jest Pracownia Projektowa ARCHIPELAG A. Wójciak, R. Wójciak Sp. J., jako Administratora danych, podanych w formularzu danych osobowych, na zasadach wskazanych w Regulaminie i Polityce Prywatności serwisu ARCHIPELAG.pl.
Jeśli chcesz także otrzymywać bonusy i informacje dotyczące akcji promocyjnych naszych i naszych Partnerów, wyraź zgodę dodatkową i zaznacz odpowiednie pole. Wyrażam zgodę na przetwarzanie moich danych osobowych przez administratora, którym jest Pracownia Projektowa ARCHIPELAG A. Wójciak, R. Wójciak Sp. J. z siedzibą: ul. M. Smoluchowskiego 56/3, 50-372 Wrocław, nr KRS 0000123673, NIP: 897-16-05-744, REGON: 931987209:
Na podstawie art. 13 Rozporządzenia Parlamentu Europejskiego i Rady (UE) 2016/679 z dnia 27 kwietnia 2016 r. w sprawie ochrony osób fizycznych w związku z przetwarzaniem danych osobowych i w sprawie swobodnego przepływu takich danych oraz uchylenia dyrektywy 95/46/WE (RODO) informujemy Cię, że (przeczytaj klauzulę informacyjną):
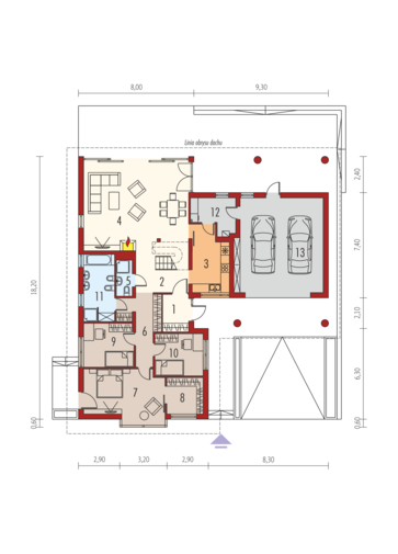
czytaj całość ›Parter
- 1. Wiatrołap 4.42 m²
- 2. Hol 13.77 m²
- 3. Kuchnia 11.27 m²
- 4. Pokój dzienny + jadalnia 41.11 m²
- 5. Łazienka 2.98 m²
- 6. Korytarz 9.50 m²
- 7. Sypialnia 18.67 m²
- 8. Garderoba 5.56 m²
- 9. Sypialnia 10.41 m²
- 10. Sypialnia 9.60 m²
- 11. Łazienka 9.68 m²
- 12. Kotłownia 5.98 m²
- 13. Garaż 39.18 m²
Zużycie energii
Wskaźnik EP dla domu z wentylacją grawitacyjną (szczegółowe dane w charakterystyce energetycznej)
Pobierz charakterystykę energetyczną:
Wskaźnik EP określa roczne zapotrzebowanie domu na nieodnawialną energię pierwotną do ogrzewania, wentylacji oraz przygotowania ciepłej wody użytkowej.
Szacunkowy koszt budowy
| STANDARDOWE (uśrednione) [zł] |
||
|---|---|---|
| Stan surowy otwarty: | 299 572 (1) | |
| Stan surowy zamknięty: | 368 704 (1) | |
| Stan deweloperski: | 610 666 (1) | |
| Instalacje wewnętrzne: | 61 066 (1) | |
|
(1) Wyliczone według współczynników (2) Wyliczone według kosztorysu |
||
Opinia eksperta
Forum
Archipelag dla Ciebie
Polecane technologie
Wypełnij formularz, skontaktujemy się z Tobą.
Zamawiając usługi forum i dzienników budowy, przyjmujesz do wiadomości i wyrażasz zgodę na świadczenie tych usług i przetwarzanie przez Usługodawcę, którym jest Pracownia Projektowa ARCHIPELAG A. Wójciak, R. Wójciak Sp. J., jako Administratora danych, podanych w formularzu danych osobowych, na zasadach wskazanych w Regulaminie i Polityce Prywatności serwisu ARCHIPELAG.pl.
Jeśli chcesz także otrzymywać bonusy i informacje dotyczące akcji promocyjnych naszych i naszych Partnerów, wyraź zgodę dodatkową i zaznacz odpowiednie pole. Wyrażam zgodę na przetwarzanie moich danych osobowych przez administratora, którym jest Pracownia Projektowa ARCHIPELAG A. Wójciak, R. Wójciak Sp. J. z siedzibą: ul. M. Smoluchowskiego 56/3, 50-372 Wrocław, nr KRS 0000123673, NIP: 897-16-05-744, REGON: 931987209:
Na podstawie art. 13 Rozporządzenia Parlamentu Europejskiego i Rady (UE) 2016/679 z dnia 27 kwietnia 2016 r. w sprawie ochrony osób fizycznych w związku z przetwarzaniem danych osobowych i w sprawie swobodnego przepływu takich danych oraz uchylenia dyrektywy 95/46/WE (RODO) informujemy Cię, że (przeczytaj klauzulę informacyjną):
czytaj całość ›



Alan IV G2 to projekt łączący klasyczną elegancję i nowoczesność. Parterowy budynek o ciekawej bryle, z poddaszem do adaptacji i dachem wielospadowym jest propozycją dla osób ceniących nieoczywiste rozwiązania. Okrągłe kolumny komponują się z kremową elewacją z tynku mineralnego i elementami w kolorze drewna. Ozdobne filary sprawiają, że największą uwagę przykuwa taras wykonany z desek kompozytowych ProDeck w kolorze złoty dąb. Wybór sprawdzonego systemu tarasowego, będącego połączeniem estetyki i wysokiej jakości, daje gwarancję komfortowego i bezproblemowego użytkowania. Dodatkowe zalety projektu stanowią staranne wykończenie oraz przemyślany układ funkcjonalny.
czytaj więcej