Ulubione projekty
Twoja lista jest pusta
Dodano projekt
Usunięto projekt
- Powierzchnia użytkowa 137.75 m²
- Dodatkowo:
- kotłownia 5.98 m²
- garaż 38.83 m²
- poddasze do adaptacji 42.04 m²
- Powierzchnia zabudowy 270.06 m²
- Pow. netto 223.01 m²
- Kubatura 585.75 m³
- Wymiary budynku 17.57 × 18.98 m
- Wysokość budynku 6.87 m
- Kąt nachylenia dachu 28o
- Powierzchnia dachu 345 m²
- Minimalne wymiary działki 24.57 x 26.98 m
Cena projektu
4 160 pln
5 200 pln
- Katalogowa karta projektu (758 KB)
- Alan IV G2 MULTI-COMFORT - charakterystyka energetyczna (wersja domu z wentylacją grawitacyjną)Budynek spełnia wymagania WT2017 (529 KB)
- Alan IV G2 MULTI-COMFORT - charakterystyka energetyczna (wersja domu z wentylacją mechaniczną)Budynek spełnia wymagania WT2017 (533 KB)
- Alan IV G2 MULTI-COMFORT - materiały z projektu technicznego (1596 KB)
- ISOVER - IZOLACJA poddasza użytkowego i stropu poddasza nieużytkowego (1181 KB)
Zadaj pytanie do projektu Alan IV G2 MULTI-COMFORT
Jesteś zainteresowany/a tym projektem? Architekt dyżurny przygotuje dla Ciebie materiały z projektu technicznego. Zostaw nam swoje dane, powiadomimy Cię, gdy pliki będą dostępne.
Zamawiając usługi forum i dzienników budowy, przyjmujesz do wiadomości i wyrażasz zgodę na świadczenie tych usług i przetwarzanie przez Usługodawcę, którym jest Pracownia Projektowa ARCHIPELAG A. Wójciak, R. Wójciak Sp. J., jako Administratora danych, podanych w formularzu danych osobowych, na zasadach wskazanych w Regulaminie i Polityce Prywatności serwisu ARCHIPELAG.pl.
Jeśli chcesz także otrzymywać bonusy i informacje dotyczące akcji promocyjnych naszych i naszych Partnerów, wyraź zgodę dodatkową i zaznacz odpowiednie pole. Wyrażam zgodę na przetwarzanie moich danych osobowych przez administratora, którym jest Pracownia Projektowa ARCHIPELAG A. Wójciak, R. Wójciak Sp. J. z siedzibą: ul. M. Smoluchowskiego 56/3, 50-372 Wrocław, nr KRS 0000123673, NIP: 897-16-05-744, REGON: 931987209:
Na podstawie art. 13 Rozporządzenia Parlamentu Europejskiego i Rady (UE) 2016/679 z dnia 27 kwietnia 2016 r. w sprawie ochrony osób fizycznych w związku z przetwarzaniem danych osobowych i w sprawie swobodnego przepływu takich danych oraz uchylenia dyrektywy 95/46/WE (RODO) informujemy Cię, że (przeczytaj klauzulę informacyjną):
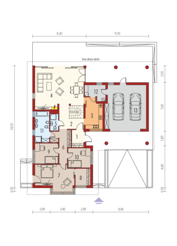
czytaj całość ›Parter
- 1. Wiatrołap 4.54 m²
- 2. Hol 13.75 m²
- 3. Kuchnia 11.32 m²
- 4. Pokój dzienny + jadalnia 41.11 m²
- 5. Łazienka 3.05 m²
- 6. Korytarz 9.56 m²
- 7. Sypialnia 18.84 m²
- 8. Garderoba 5.60 m²
- 9. Sypialnia 10.53 m²
- 10. Sypialnia 9.66 m²
- 11. Łazienka 9.79 m²
- 12. Kotłownia 5.98 m²
- 13. Garaż 38.83 m²
Zużycie energii
Wskaźnik EP dla domu z wentylacją grawitacyjną (szczegółowe dane w charakterystyce energetycznej)
Pobierz charakterystykę energetyczną:
Wskaźnik EP określa roczne zapotrzebowanie domu na nieodnawialną energię pierwotną do ogrzewania, wentylacji oraz przygotowania ciepłej wody użytkowej.
Szacunkowy koszt budowy
| STANDARDOWE (uśrednione) [zł] |
||
|---|---|---|
| Stan surowy otwarty: | 289 913 (1) | |
| Stan surowy zamknięty: | 356 816 (1) | |
| Stan deweloperski: | 590 976 (1) | |
| Instalacje wewnętrzne: | 59 097 (1) | |
|
(1) Wyliczone według współczynników (2) Wyliczone według kosztorysu |
||
Forum (3)
Ostatnie tematy:
- Myślisz o... [0] gość, 2016-11-30 15:02
- Budowa domu [9] gość, 2015-03-29 13:27
- Kosztorys [4] gość, 2014-09-08 13:56
Archipelag dla Ciebie
Polecane technologie
Wypełnij formularz, skontaktujemy się z Tobą.
Zamawiając usługi forum i dzienników budowy, przyjmujesz do wiadomości i wyrażasz zgodę na świadczenie tych usług i przetwarzanie przez Usługodawcę, którym jest Pracownia Projektowa ARCHIPELAG A. Wójciak, R. Wójciak Sp. J., jako Administratora danych, podanych w formularzu danych osobowych, na zasadach wskazanych w Regulaminie i Polityce Prywatności serwisu ARCHIPELAG.pl.
Jeśli chcesz także otrzymywać bonusy i informacje dotyczące akcji promocyjnych naszych i naszych Partnerów, wyraź zgodę dodatkową i zaznacz odpowiednie pole. Wyrażam zgodę na przetwarzanie moich danych osobowych przez administratora, którym jest Pracownia Projektowa ARCHIPELAG A. Wójciak, R. Wójciak Sp. J. z siedzibą: ul. M. Smoluchowskiego 56/3, 50-372 Wrocław, nr KRS 0000123673, NIP: 897-16-05-744, REGON: 931987209:
Na podstawie art. 13 Rozporządzenia Parlamentu Europejskiego i Rady (UE) 2016/679 z dnia 27 kwietnia 2016 r. w sprawie ochrony osób fizycznych w związku z przetwarzaniem danych osobowych i w sprawie swobodnego przepływu takich danych oraz uchylenia dyrektywy 95/46/WE (RODO) informujemy Cię, że (przeczytaj klauzulę informacyjną):
czytaj całość ›


