Ulubione projekty
Twoja lista jest pusta
Dodano projekt
Usunięto projekt
- Powierzchnia użytkowa 137.49 m²
- Dodatkowo:
- kotłownia 5.98 m²
- garaż 39.18 m²
- poddasze do adaptacji 49.29 m²
- Powierzchnia zabudowy 263.95 m²
- Pow. netto 230.12 m²
- Kubatura 608.52 m³
- Wymiary budynku 17.30 × 18.80 m
- Wysokość budynku 6.87 m
- Kąt nachylenia dachu 28o
- Powierzchnia dachu 352 m²
- Minimalne wymiary działki 24.40 x 26.80 m
Cena projektu
4 160 pln
5 200 pln
- Katalogowa karta projektu (775 KB)
- Alan II G2 - charakterystyka energetyczna (wersja domu z wentylacją grawitacyjną)Budynek spełnia wymagania WT2017 (523 KB)
- Alan II G2 - charakterystyka energetyczna (wersja domu z wentylacją mechaniczną)Budynek spełnia wymagania WT2021 (526 KB)
- Alan II G2 - projekt prefabrykowanej więźby dachowej (4071 KB)
- Alan II G2 - zestawienie materiałów SSO (27 KB)
- Alan II G2 - zestawienie materiałów SSZ (35 KB)
- Alan II G2 - zestawienie materiałów SD (43 KB)
Zadaj pytanie do projektu Alan II G2
Jesteś zainteresowany/a tym projektem? Architekt dyżurny przygotuje dla Ciebie materiały z projektu technicznego. Zostaw nam swoje dane, powiadomimy Cię, gdy pliki będą dostępne.
Zamawiając usługi forum i dzienników budowy, przyjmujesz do wiadomości i wyrażasz zgodę na świadczenie tych usług i przetwarzanie przez Usługodawcę, którym jest Pracownia Projektowa ARCHIPELAG A. Wójciak, R. Wójciak Sp. J., jako Administratora danych, podanych w formularzu danych osobowych, na zasadach wskazanych w Regulaminie i Polityce Prywatności serwisu ARCHIPELAG.pl.
Jeśli chcesz także otrzymywać bonusy i informacje dotyczące akcji promocyjnych naszych i naszych Partnerów, wyraź zgodę dodatkową i zaznacz odpowiednie pole. Wyrażam zgodę na przetwarzanie moich danych osobowych przez administratora, którym jest Pracownia Projektowa ARCHIPELAG A. Wójciak, R. Wójciak Sp. J. z siedzibą: ul. M. Smoluchowskiego 56/3, 50-372 Wrocław, nr KRS 0000123673, NIP: 897-16-05-744, REGON: 931987209:
Na podstawie art. 13 Rozporządzenia Parlamentu Europejskiego i Rady (UE) 2016/679 z dnia 27 kwietnia 2016 r. w sprawie ochrony osób fizycznych w związku z przetwarzaniem danych osobowych i w sprawie swobodnego przepływu takich danych oraz uchylenia dyrektywy 95/46/WE (RODO) informujemy Cię, że (przeczytaj klauzulę informacyjną):
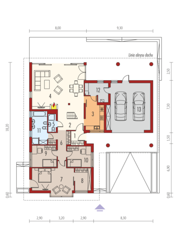
czytaj całość ›Parter
- 1. Wiatrołap 3.39 m²
- 2. Hol + schody 13.77 m²
- 3. Kuchnia 11.27 m²
- 4. Pokój dzienny 41.11 m²
- 5. Łazienka 2.98 m²
- 6. Korytarz 7.89 m²
- 7. Sypialnia 20.50 m²
- 8. Garderoba 6.89 m²
- 9. Sypialnia 10.41 m²
- 10. Sypialnia 9.60 m²
- 11. Łazienka 9.68 m²
- 12. Kotłownia 5.98 m²
- 13. Garaż 39.18 m²
Zużycie energii
Wskaźnik EP dla domu z wentylacją grawitacyjną (szczegółowe dane w charakterystyce energetycznej)
Pobierz charakterystykę energetyczną:
Wskaźnik EP określa roczne zapotrzebowanie domu na nieodnawialną energię pierwotną do ogrzewania, wentylacji oraz przygotowania ciepłej wody użytkowej.
Szacunkowy koszt budowy
| STANDARDOWE (uśrednione) [zł] |
||
|---|---|---|
| Stan surowy otwarty: | 299 156 (1) | |
| Stan surowy zamknięty: | 368 192 (1) | |
| Stan deweloperski: | 609 818 (1) | |
| Instalacje wewnętrzne: | 60 981 (1) | |
|
(1) Wyliczone według współczynników (2) Wyliczone według kosztorysu |
||
Forum (2)
Ostatnie tematy:
- kto realizuje ten... [6] gość, 2016-03-29 08:37
- Kto buduje ten... [0] gość, 2015-07-28 08:05
Dzienniki budowy
Archipelag dla Ciebie
Polecane technologie
Wypełnij formularz, skontaktujemy się z Tobą.
Zamawiając usługi forum i dzienników budowy, przyjmujesz do wiadomości i wyrażasz zgodę na świadczenie tych usług i przetwarzanie przez Usługodawcę, którym jest Pracownia Projektowa ARCHIPELAG A. Wójciak, R. Wójciak Sp. J., jako Administratora danych, podanych w formularzu danych osobowych, na zasadach wskazanych w Regulaminie i Polityce Prywatności serwisu ARCHIPELAG.pl.
Jeśli chcesz także otrzymywać bonusy i informacje dotyczące akcji promocyjnych naszych i naszych Partnerów, wyraź zgodę dodatkową i zaznacz odpowiednie pole. Wyrażam zgodę na przetwarzanie moich danych osobowych przez administratora, którym jest Pracownia Projektowa ARCHIPELAG A. Wójciak, R. Wójciak Sp. J. z siedzibą: ul. M. Smoluchowskiego 56/3, 50-372 Wrocław, nr KRS 0000123673, NIP: 897-16-05-744, REGON: 931987209:
Na podstawie art. 13 Rozporządzenia Parlamentu Europejskiego i Rady (UE) 2016/679 z dnia 27 kwietnia 2016 r. w sprawie ochrony osób fizycznych w związku z przetwarzaniem danych osobowych i w sprawie swobodnego przepływu takich danych oraz uchylenia dyrektywy 95/46/WE (RODO) informujemy Cię, że (przeczytaj klauzulę informacyjną):
czytaj całość ›




